Rodinný dom na predaj v lokalite Košická Polianka v Košiciach - okolie
ZARA REALITY v zastúpení ing. Rastislav Leško ponúka na predaj:
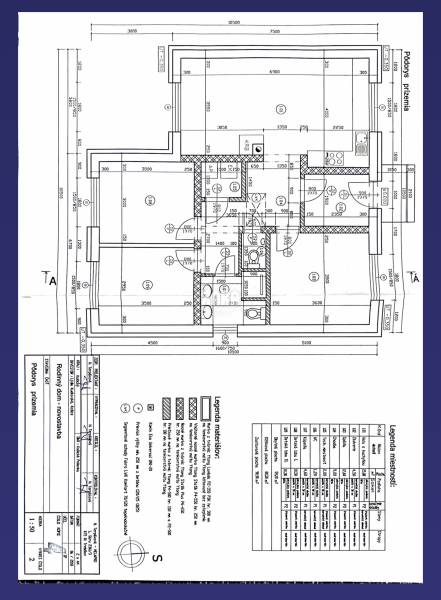
4 izbový BUNGALOV
Hľadáte moderný, kvalitne postavený dom na pokojnom mieste, no stále v perfektnej dostupnosti do Košíc?
Predstavujeme Vám príjemnú 4 izbový dom typu BUNGALOV v obľúbenej obci Košická Polianka, ideálne rodinné bývanie bez ďalších investícií.
Pozemok 710 m² | Úžitková plocha 81 m² | Zastavaná plocha: 111 m² + TERASA 23 m² |
Kolaudovaný v r. 2018 DOHODA NA CENE MOŽNÁ
✅Hlavné benefity nehnuteľnosti
Kvalitná stavba, osobný dozor nad celou výstavbou od základov, až po oplotenie.
Výnimočná TERASA 23 m² v budúcnosti s potencionálom zobytnenia a vytvorenia 5. izby
Úsporné bývanie, zateplenie, podlahové kúrenie, piecka
Ovocné stromy, okrasné dreviny, priestor na bazén
Výborní susedia, nová ulica rodinných domov
Nábytok a zariadenie, podľa dohody na cene s majiteľom
✅Technické údaje
Pozemok: 710 m² (šírka 16 m )
Konštrukcia: PORFIX 30 + zateplenie polystyrén 150 mm
Strecha: sedlová, betónová škridľa LEIER, keramický komín s nerezovou vložkou
Povala: strešné sklápacie schody. Pochôdzna, využitie aj na úložný priestor
Plastové okná so sieťkami, drevený strop, sádrokartón so zateplením (minerálna vlna)
✅Inžinierske siete:
Obecný vodovod + vlastná vŕtaná studňa (10 m)
Elektrina 230/400 V
Odpad: betónová žumpa 12 m³
Kúrenie: teplovodné podlahové, elektrický kotol Protherm + zásobník TÚV
Ohrev vody: bojler
Možnosť napojenia na plyn
Kamerový systém, internet O2
Keramická piecka na drevo v obývacej izbe
✅Dispozícia: predsieň, priestranná obývacia izba s kuchyňou a výstupom na terasu cez posuvné francúzske okno
spálňa + 2 detské izby
kúpeľňa s WC a oknom
komora a technická miestnosť
✅Interiér:
Deliace priečky o hrúbke 300 mm vo všetkých prechodných izbách
Vstavané skrine v predsieni, spálni, detskej izbe
Interiérové dvere, oblôžkové zárubne, plastové vchodové dvere
Omietky na stenách: sádrové, strojové
Plávajúce podlahy v izbách.
Kuchynská linka na mieru so vstavanými spotrebičmi značky Mora
(indukčná varná doska, elektrická rúra, väčšia umývačka riadu)
✅Exteriér
Pripravené miesto pre bazén + solárna sprcha
Tuje, okrasné dreviny a ovocné stromy: višňa, marhuľa, hruška, jabloň, figa
Plechový sklad na náradie + drevený na drevo
Zbery dažďovej vody zo striech do trativodu
✅Lokalita:
Rodinná, pokojná zástavba nových domov
potraviny cca 5 minút pešo, obecný úrad, multifunkčné ihrisko, pizzeria, kostol,
výborné pre rodiny aj dochádzanie do Košíc
Košice len 10 km, rýchly prístup autom aj MHD
✅Táto nehnuteľnosť je ideálna:
✔ Páry, alebo rodiny hľadajúce pokojné bezpečné bývanie
✔ Tých, ktorí ocenia kvalitu stavby a nízke prevádzkové náklady
✔ Milovníkov bývania v dome, oddychu na terase a relaxu aj práci v záhrade
***
Kúpa domu je dôležitým krokom v živote každého človeka. Nenechajte nič na náhodu a v prípade záujmu o obhliadku,
alebo podrobnejších informácií, kontaktujte realitného makléra:
Ing. Rastislav Leško na ☎ : 0903 105 232 sms-kou, alebo emailom na rastislav.lesko@zara-reality.sk
ZARA REALITY spolupracuje s finančnými špecialistami. Kvalifikovaní odborníci, ktorí majú potrebné znalosti.
Spolu Vám ušetríme Váš čas, aj peniaze...
ZARA REALITY: keď sa sny stávajú realitami..
Podrobné informácie
Poloha nehnuteľnosti na mape
Košická Polianka, Košice-okolie, Slovensko



