3-izbový byt na predaj v lokalite Košice - mestská časť Sever v časti Sever, Košice
ZARA REALITY v zastúpení Zdenka Horváthová ponúka:
EXKLUZÍVNE:
3-izbový TEHLOVÝ byt s BALKÓNOM v TOP lokalite Košice - Sever, ul. TOLSTÉHO s možnosťou kúpy GARÁŽE v bytovom dome.
✨Situovaný v modernom tehlovom bytovom dome postavenom v roku 2010
✨Bytový dom sa nachádza na uzavretom, vlastnom dvore. Tento pozemok je v podielovom spoluvlastníctve vlastníkov bytov.
✨Tento byt je ideálnou voľbou pre klientov, ktorí hľadajú niečo výnimočné, nie tuctové, pokojné prostredie a zároveň rýchlu dostupnosť do centra mesta.
✨ Pozrite si 3D VIDEOPREHLIADKU a prejdite sa po byte ešte pred obhliadkou.
✨ možnosť zakúpenia aj uzavretého garážového státia v bytovom dome
✔ Celková úžitková výmera bytu: 76 m² + BALKÓN : 12 m²
✔ GARÁŽ - uzavreté státie priamo pod domom ( 12,5 m²). NIe je zahrnutá v kúpnej cene.
✔ PIVNICA
✔ ALTÁNOK
✔ Bytový dom má VLASTNÚ PLYNOVÚ KOTOLŇU
Nachádza sa na: 2/3 posch.
Bez výťahu.
KÚPOU VOĽNÝ
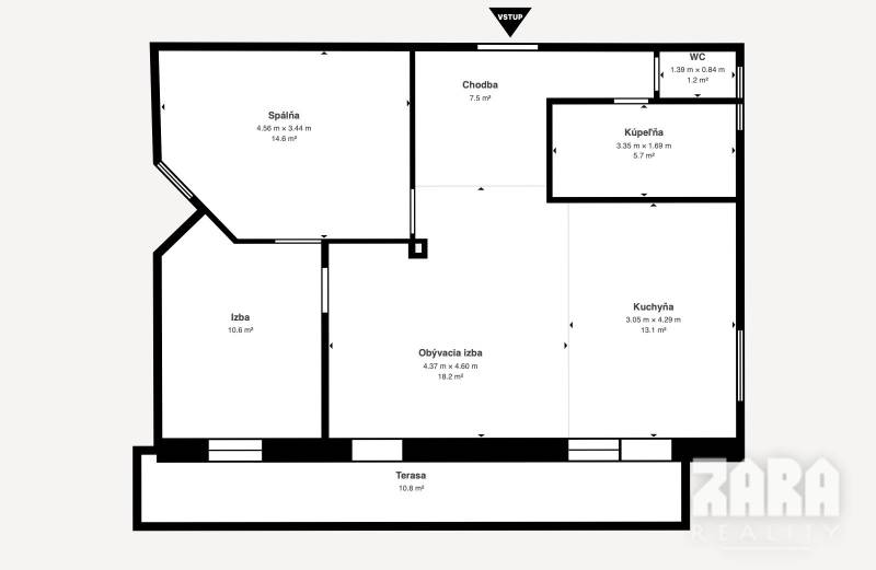
Dispozícia bytu: viď foto v prílohe.
Rekonštrukcia bytu:zrealizovaná priebežne. Menené plastové okná, kuchynská linka so zabudovanými spotrebičmi, vyrobená na mieru, murované bytové jadro, medené elektrické rozvody, plávajúce podlahy, dlažby, omietky na stenách, radiátory,...
BYT je prevažne situovaný do vnútorného dvora na juhozápadnú stranu do tichej lokality. Je pekne presvetlený, vzdušný s dostatkom súkromia.
Predsieň s miestom pre veľkú vstavanú skriňu.
Kuchyňa s obývacou izbou vytvára príjemný komfortný priestor. 2 x výstup na terasu.
Izba s výstupom na terasu.
Spálňa so samostatným vstupom. Situovaná na severozápad.
Kúpeľňové bytové jadro s oddelenou samostatnou toaletou. Obe sú odvetrávateľné oknom.
BALKÓN : poskytuje prirodzené prepojenie interiéru s vonkajším priestorom a ponúka ideálny priestor na každodenný relax.
Vlastná drevená strieška poskytne ochranu pred slnkom aj dažďom.
PIVNICA: (5,75 m² )situovaná na prízemí bytového domu. Odvetrávateľná.
GARÁŽ:o výmere 12,50 m2 s výsuvnou elektrickou bránou. V bytovom dome sú 4 garáže ako samostatné nebytové priestory.
Momentálne je jedna brána - pre dve samostatné garáže a nie sú tam oddeľovacie priečky (možnosť garáže oddeliť)
Garáž sa prednostne ponúka na predaj budúcemu majiteľovi bytu. Cena garáže je na dohode s majiteľom
BYTOVÝ DOM: ide o mladší bytový dom (17 ročný), zateplený. Moderné spoločné priestory. Na podlaží sú len 2 bytu. V B sa nachádza iba 7 bytových jednotiek.
Energetický certifikát A
Slušní, bezproblémoví susedia.
LOKALITA: tichá a zelená lokalita s výbornou dostupnosťou do centra. Zopár metrov od bytového domu sú autobusové spojenia s vynikajúcim napojením na dostupnosť akýmkoľvek smerom.
Nehovoriac o vynikajúcich ZŠ, škôlkách, VŠ, TUKE, Univerzita veterinárskeho lekárstva....
V blízkosti domu sú ohradené ihriská pre deti, venčoviská, Outdoor fitness, základné školy, reštaurácie, obchody...
***
ZAUJÍMAVOSTI v blízkom okolí:
Park Anička: Čisté, udržiavané, perfektné miesto pre Vás, aj deti. Množstvo preliezok, badmintonové ihrisko, ping pongový stôl, bludisko, minigolf, reštaurácia.
Čermeľské údolie: nájdete tu miesta pre piknik, detskú železnicu, detské ihriská, reštauráciu, lanový park TARZÁNIA, westernovú šou, golfové ihrisko.
Bankov: nádherné lesné prostredie. Je rekreačným strediskom už takmer 3 storočia. Dostanete sa tu napešo, bicyklom, aj MHD. V súčastnosti obľúbené turistické a športové stredisko. Nájdete tu množstvo ohnísk na opekanie, náučný chodník, oddychové miesta so stolmi a altánkami, cyklotrasy, minigolf,..
***
V prípade záujmu o obhliadku, alebo podrobnejších informácií, kontaktujte realitného makléra:
Zdenka Horváthová na t.č: 0907134687, smskou, alebo emailom na horvathova@zara-reality.sk
ZARA REALITY: ...keď sa sny stávajú realitami...
Podrobné informácie
Poloha nehnuteľnosti na mape
Tolstého, Košice - mestská časť Sever, Košice - Sever, Slovensko





