Rodinný dom na predaj v lokalite Nováčany v Košiciach - okolie
ZARA REALITY v zastúpení ing. Rastislav Leško ponúka na predaj a možnosť bývať v MODERNEJ NOVOSTAVBE v obci NOVÁČANY
✅ ŠTÝLOVÁ, KVALITNÁ NOVOSTAVBA len pár minút od Košíc.
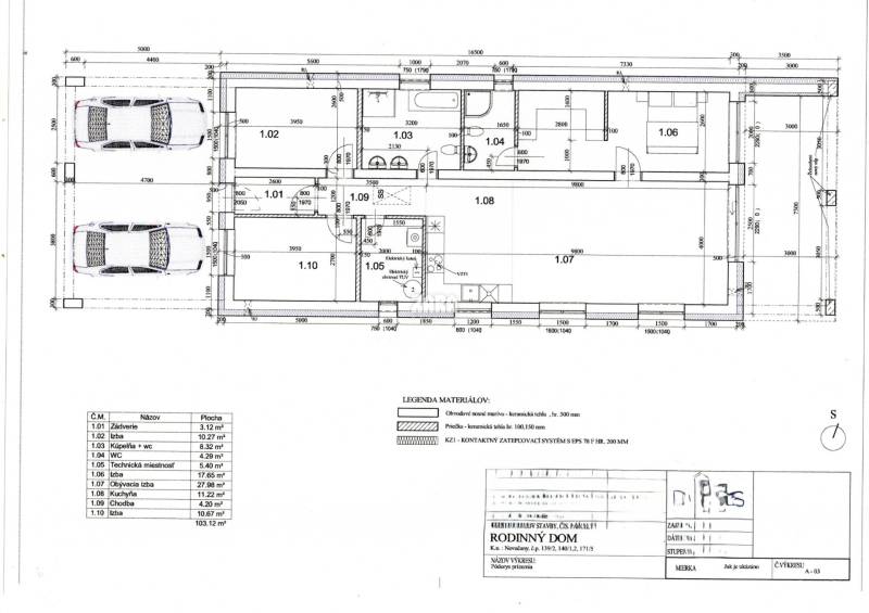
Pozemok 956 m² | Úžitková plocha 103,12 m² | Zastavaná plocha domu 125 m2 + TERASA 18 m²
Celková zastavaná plocha: 190 m²
Kolaudovaný v r. 2025
✅ Pozrite si 3D VIDEOPREHLIADKU * ... a prejdite sa po dome ešte pred obhliadkou.
✅Hlavné benefity nehnuteľnosti
• Výborné dispozičné riešenie, moderný dizajn. Komfort. Minimalistický štýl.
• Murovaný 4 izbový rodinný dom, jednopodlažný typ bungalov.
• Kvalitná stavba, materiály, technológie, zabudované kuchynské spotrebiča - vyššia kvalita
• Dom poskytuje vynikajúcu tepelnú stabilitu
• Celý interiér je úplne nový, nepoužívaný.
• Predáva sa čiastočne zariadený. Nábytok v dome je vyrobený na mieru
• Veľká TERASA z výstupom z obývacej izby a spálne
• Vynikajúce PARKOVACIE možnosti pred- takmer domom 160 m (2 kryté prístrešky pre auto)
DISPOZIČNÉ RIEŠENIE:
⦿ zádverie
⦿ 2 izby
⦿ 1 spálňa z výstupom priamo na terasu
⦿ šatník: bohatý úložný priestor, police, zásuvky, závesný systém, zrkadlo, uzatvárateľný sklenenými dverami z dojazdom
⦿ 1. kúpeľňa spojená s toaletou. Vaňa, sprchovací kút, dvojúmývadlo, kúpeľ. nábytok, led zrkadlo.
⦿ 2. kúpeľňa s toaletou - určná prevažne pre spálňu. Obe majú elegantný dizajn. Veľký sprchovací kút, zrkadlo, umývadlo, kúp. skrinka
⦿ technická miestnosť. Väčšia s miestom pre práčku, sušičku, aj ako sklad
⦿ priestranná obývačka prepojená s modernou rohovou kuchyňou. Výstup na terasu a do záhrady
⦿ terasa (z výstupom cez veľké francúzske okná z obývacej izby a spálne
✅INŽINIERSKE SIETE:
obecný vodovod • elektrina 230/400 V • optický internet • ČOV • Žumpa 12 m² • kanalizácia v obci štádiu riešenia •
celoplošné podlahové teplovodné vykurovanie • elektrický kotol 12 kW • zásobník teplej vody 120 l
✅KONŠTRUKČNÉ A TECHNICKÉ RIEŠENIA
• Obvodové murivo: vysoko kvalitná keramická TEHLA Leier (300 mm) + tepelná izolácia expandovaný polystyrén (150 mm)
• Fasáda: silikátová omietka s vysokou odolnosťou
• Strecha: masívna železobetónová stropná konštrukcia (250 mm), spádový polystyrén (300 mm) pre tepelnú izoláciu a správny odtok vody
• Povrchová úprava strechy:fólia FATRAFOL, zasypaná kamenivom
• Plastové okná s trojsklom. (biela/antracid)
• Elektrické VONKAJŠIE ŽALÚZIE
• 2 francúzske okná z posuvným systémom.
• KLIMATIZÁCIA
• Rekuperácia
• Vonkajší bezpečnostný KAMEROVÝ systém
• Smart vonkajšie osvetlenie reagujúce na prostredie
• Vonkajšie elektrické zásuvky, ideálne pre elektromobily
• Zámková kamenná dlažba predd bomom s pekným efektom tzv. lomenej mozaiky
• Dom obložený OBKLADOM (hlinikoplast) z prednej a zadnej strany - obloženie je trvácne voči vlhkosti a ľahko sa udržiava
• Vstupná brána na elektrické otváranie.
• Úložný priestor pod terasou
✅VYBAVENIE a ZARIADENIE
Rohová kuchynská linka s bohatým pracovným a úložným priestorom.
Vstavané kvalitné kuchynské spotrebiče zn. BOSCH (indukčná varná doska, elektrická rúra, širšia umývačka riadu, digestor, mikrovlnná rúra, chladnička a mraznička)
Na mieru vyrobené interiérové dvere a zárubne (výška 235 cm)
Sádrové interiérové omietky. Vysoké stropy. Dizajnové svietidlá.
Kvalitné laminátové podlahy v izbách a kuchyni. V zvyšnej časti domu je dlažba.
✅POZEMOK
Veľkorysá výmera pozemku. Nasadené rodiace ovocné stromy(hrušky, ringloty, slivka)
✅LOKALITA:
Tichá a pokojná lokalita. Slušní a bezproblémoví susedia. Dobré susedské vzťahy.
Blízkosť prírody, možnosť turistiky, cyklotúry. Dobrá dostupnosť do Košíc (cca 15 km).
V obci je materská škôlka, detské ihrisko, multifunkčné a športové ihrisko.
Predávajúci si vyhradzuje právo, vybrať si kupujúceho podľa vlastného uváženia.
***
Kúpa domu je dôležitým krokom v živote každého človeka. Nenechajte nič na náhodu a v prípade záujmu o obhliadku,
alebo podrobnejších informácií, kontaktujte realitného makléra:
Ing. Rastislav Leško na ☎ : 0903 105 232 sms-kou, alebo emailom na rastislav.lesko@zara-reality.sk
ZARA REALITY spolupracuje s finančnými špecialistami. Kvalifikovaní odborníci, ktorí majú potrebné znalosti.
Spolu Vám ušetríme Váš čas, aj peniaze...
ZARA REALITY: keď sa sny stávajú realitami..
Podrobné informácie
Poloha nehnuteľnosti na mape
Nováčany, Košice-okolie, Slovensko



